傾斜に合わせたプランターを製作!!

リプラf傾斜プランター

~建物壁緑化、テラス緑化、狭い空間での緑化に最適~

神奈川県海老名駅前商業ビル L1.8mxW20cmxH15~25cm プランターを連結 4 ヶ所全長約 83m 設置

赤矢印部分

オレンジ矢印部分

■特徴

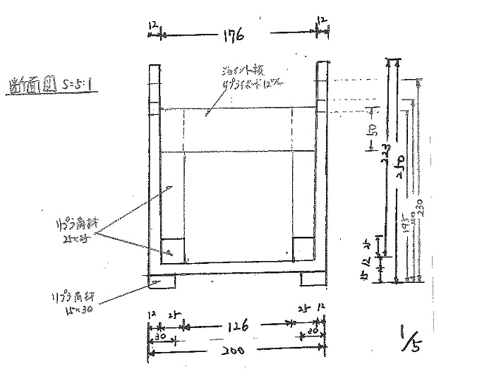
  1. 上部水平・下部傾斜仕上げで製作可能なため、水勾配をクリアし、設置が簡単
  2. 優良な再生プラ使用のプランターで、腐らず、丈夫で長持ち、特殊サイズ対応
  3. 20m前後の土が繋がっており、根が自由に行き来できるため、木が弱り難い
  4. くるストシート敷きでルーピングを防止し、植物が健全に育ち、枯れ難い
  5. 更に優良土(PS-H、PS菜園用)を使用し、狭いスペース植栽の欠点をカバー

中央が高い傾斜に合わせ、左右に傾斜コンテナ設置(上部水平)

■組立て仕様

  1. 傾斜に合わせたプランター製作(上部水平)

  1. 横&底をビス止め接続

  1. くるストシートを敷き、
    ルーピング防止